绍兴大都会的设计关键在对大型社区空间体系的熟练控制,通过流畅的天际线布局、延展的城市界面、移步换景的动线、与外部景观高度契合的户型设计,在时代的前行之中镌刻新一代的都会经典,成为其他万科地域公司在示范区设计上的参考标准。
塑造完整而起伏的城市界面
在正对城市的形象界面上,绍兴大都会采用了点板结合,高低错落的天际线布局,比起杭州大都会等高的四座塔楼,它们显得更为低调温和,也巧妙化解了超长城市界面的单调感。
绍兴万科大都会分为A、B两个地块,正居镜湖核心区域,紧邻市政府周边的政务、商务、和文体资源。对于都会风格的秩序营造上,如何利用地块自身的规模形成全新的城市格局,是本案设计的思考核心。
打造富有序列感的空间体系
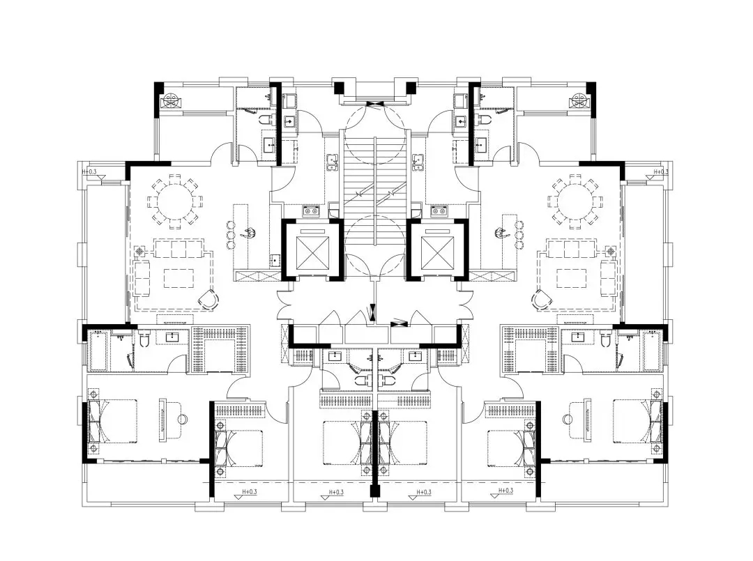
都易设计采用最擅长的轴线手法来塑造都市中心社区的规划格局:通过南北纵向的景观轴线,与地块北部东西走向的小河形成正交关系,确立了整个社区的基本秩序。地块南部A区块均匀、对称布置了13栋高层住宅及相应的配套用房,在南侧横湖路及西侧本觉路上各设一个地块出入口;B区块一层设置为商业,上面三层住宅建筑,创造临近水系的亲和感。南北地块之间设置景观步行桥,增加了两个地块场所的联系感,也加强了建筑轴线的纵深感。平面上的“三纵三横”,形成1个中心花园、 2个社区组团、3条步行系统、4座景观院落的层次感。
示范区的动线体系设计:由于场地的北侧沿街界面较长,建筑师因势利导地设计了丰富的空间迭代。从西北角的“社区前场”公共广场开始,进入由景观柱廊构成的示范区入口,以及精致拱廊限定的室外步道,都会的仪式感便逐级代入,随后,圆形的示范区成为空间序列的第一个高潮,这里顺理成章地陈列了整个社区规划的精致沙盘模型。此时,空间的路径开始戏剧性地形成回路,访客可以继续前行抵达样板房,也可通过跨水长廊,深入社区地形,体验临水栈道的江南韵味。长达二百米的空间被一系列起承转合,赋予了情绪上的张力。
在社区南北主轴的空间体系上,都会主义的设计手法得到更加强烈的验证。在整个社区竣工之后,南北主轴上的架空环廊,将于北区示范区的临河趣味回廊形成连接,通过入口、中心花园等多个节点景观,串联出气势磅礴的归家序列体验,同时也实现了多级物管的保障安全体系。
严谨而精致的建筑立面美学
虽然整体社区呈现高度的秩序感,但在建筑美学的塑造上,依然具备江南生活格调所追求的精致感和细腻度。在绍兴万科大都会,建筑的尺度和细节的设计控制可以体现在严谨的构图之中:这种严谨首先来自都会风格在古典美学意义上的传承。在竖向和横向的三段构图上,立面分段更有层次感和嵌套感,在建筑立面整体的三段布局之中,针对每一段还有第二层次的分段逻辑,构图更为立体。特别是对东南西北四个立面保持均好的设计,使得不同角度、不同距离观看建筑时均有城市地标的视觉感受。建筑的基座在近人尺度上,通过石材与装饰铝板的拼贴划分,强化了建筑的稳定感和经典时尚的气质。
从高层建筑的尺度上说,绍兴万科大都会在满足平面户型对面宽的基本要求的基础上,通过建筑构件的竖向特征以实现高耸的都市魅力,也是一个显著的设计要素。尽管建筑的最大高度只有80米,但在城市的范围看,设计上的垂直感会显得整个建筑群落更有气势和天际感,在更大的尺度上与城市秩序保持着和谐的韵律和秩序。
与南侧的高层建筑不同,北部沿街的示范区和商业中心,构成了低密度的都市界面,在向传统城市尺度致敬的同时,也把都会风格的精致感在第一时间传递给了街区过客。在步行穿越展示中心与南部地块连接的小桥之时,中国历史的江南、都会未来的江南,在这个时刻获得了新的连接。
与景观格局紧密契合的户型空间
在都易的设计中,风格的问题进一步落实为对现代生活方式的激发和呼应。在绍兴万科大都会,古典主义的美学比例与当代中国生活方式进行了新的共鸣。目前市面上的大部分户型,为了做到更多“朝南开间”,甚至不惜牺牲每个房间的面宽。采光量和尺度感,真的是鱼与熊掌吗?
以建筑面积约142㎡三房两厅两卫户型为例,“南向采光”变成了“270°三面采光”,开启270°光学环幕大光圈生活。3个朝南开间,全部留给卧室,西面临河,在延展一线河景面宽的同时,强化了西立面与南立面的整体感,也由此获得了极高的户型空间利用率。
户型的流线设计和房间组合方式非常符合江南气候和生活习惯:餐客相连、U型厨房、动静分区、客卫干湿分离、主卧套间设计……这些当代高端生活的空间要素全部得到落实。南向双次卧与约6.1米面宽的观景阳台,强调景观资源利用最大化,更是提供了视野开阔的都市心理体验。
产品是构成生活场景的整体——这是万科的开发目标,也是都易的设计使命。创作由内而外的都会风格场景体验,让这种设计风格和美学方式更加成熟、完善、稳健,也使得绍兴万科大都会能够在时代的前行之中镌刻新一代的都会经典。








